2D Floor Plan Redraw Services
Precise and Professional Floor Plan Redraws for Clear Property Layouts
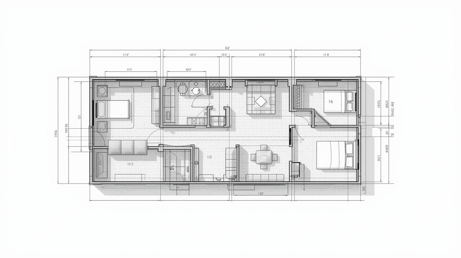
A 2D floor plan redraw acts as the foundation of any architectural or real estate project. It visually explains how rooms are connected, where entrances and windows are located.
At Voxelhaus consultancy, we specialize in creating precise and professional 2D floor plan redraws that provide a clear and accurate representation of a property's layout. A well-drawn 2D floor plan redraw is essential for architects, interior designers, and real estate professionals to showcase the flow of space, dimensions, and functional arrangement of rooms.
Why 2D Floor Plan Redraw Matters
A 2D floor plan redraw acts as the foundation of any architectural or real estate project. It visually explains how rooms are connected, where entrances and windows are located, and how the property flows from one space to another. Unlike complex technical drawings, a simple 2D redraw is easy for clients, buyers, and stakeholders to understand.

Clear Property Understanding
2D floor plan redraws provide a simple overview of the property's layout. Buyers and clients can instantly grasp the structure of the home or building, including room dimensions, wall placements, and entry points.

Effective Sales & Marketing Tool
Real estate listings with 2D redraws receive more engagement because they provide transparency. Buyers feel more confident when they can see the actual layout of a property before visiting.

Supports Accurate Planning
Whether for construction or renovation, a 2D floor plan redraw serves as a reliable reference for builders, engineers, and contractors. It minimizes errors and supports material estimation.

Enhances Client Communication
Clients often struggle with technical blueprints. A professionally redrawn 2D plan bridges this gap, making it easier to present design ideas and get approvals quickly.

Affordable & Time-Saving
Compared to 3D floor plans or virtual walkthroughs, 2D floor plan redraws are cost-effective yet powerful for both marketing and design. They are quicker to produce, making them ideal for tight timelines.

Professional Presentation
Clean, accurate 2D redraws enhance your professional image and help build trust with clients and buyers through clear, understandable visual communication.
Our 2D Floor Plan Redraw Services

From Sketches
We can take your rough sketches or hand-drawn layouts and transform them into polished, professional 2D floor plan redraws with accurate measurements and clear labeling. Perfect for presentations, sales, or approvals.

From Blueprints
Already have technical CAD drawings or old blueprints? We can redraw them into clean, easy-to-read 2D layouts that are ideal for marketing, client presentations, or renovation projects.

Colored & Furnished Redraws
For real estate marketing, we create furnished 2D redraws with added furniture, décor, and color coding to highlight different spaces. These layouts help buyers visualize the property more realistically.

High-Resolution Outputs
All our redraws are delivered in high-resolution formats, suitable for websites, brochures, and print materials. Crisp and professional visuals for both digital and offline marketing.
Why Choose Voxelhaus Consultancy?
Experienced Designers
Experienced Designers with architectural visualization expertise
Tailored Solutions
Tailored Solutions for real estate agents, developers, and architects
Affordable Pricing
Affordable Pricing without compromising quality
Fast Turnaround
Fast Turnaround to meet your deadlines
Secure Services
Confidential & Secure Services with 100% data safety
High-Resolution Outputs
High-Resolution Outputs for all marketing needs
Professional Standards
Professional Presentation standards
Client-Focused
Client-focused approach with clear communication
A 2D floor plan redraw is more than a simple sketch—it's the foundation of clear communication, successful sales, and well-executed projects. At Voxelhaus consultancy, we specialize in crafting accurate and visually appealing redraws that simplify complex ideas and give your projects the professional touch they deserve.
3D Floor Plan Redraw Services
Transform Traditional Layouts into Visually Compelling 3D Models
At Voxelhaus consultancy, we specialize in delivering high-quality 3D floor plan redraw services that transform traditional 2D layouts into visually compelling, easy-to-understand 3D models. A well-drawn 3D floor plan allows homebuyers, real estate developers, and property managers to visualize the property with realistic dimensions, furniture arrangements, and flow between spaces.
Why 3D Floor Plan Redraw is Important
A 2D floor plan provides information, but it often lacks the perspective needed to fully understand a property. With a 3D floor plan redraw, you get a clear, interactive visual that highlights the depth, proportions, and layout of every room. This helps buyers and investors imagine themselves in the space, making it easier to market and sell properties faster.

Better Property Visualization
3D floor plans allow clients to see how spaces connect and flow, unlike flat 2D layouts. Buyers can instantly picture where furniture, lighting, and décor fit into each area.

Increased Engagement and Sales
High-quality 3D visuals attract more attention online and in marketing campaigns. Potential buyers are more likely to engage with listings that feature 3D floor plans.

Professional and Modern Appeal
Presenting properties with 3D floor plans shows your commitment to quality and professionalism. It gives your brand a modern edge, helping you stand out from competitors.

Error Detection and Space Planning
3D redraws make it easier to identify design flaws or space constraints early in the process. This ensures better planning, accurate layouts, and improved efficiency.

Client Confidence and Satisfaction
When clients can clearly visualize a project, it builds trust. A 3D floor plan redraw provides transparency and clarity, helping clients feel more confident in their decisions.

Realistic Property Representation
3D floor plans provide a more accurate representation of how the space will look and feel, helping buyers make informed decisions about their potential new home.
Our 3D Floor Plan Redraw Services

Conversion from 2D to 3D Floor Plans
We take your traditional 2D sketches or CAD drawings and convert them into stunning 3D floor plans with realistic textures, lighting, and finishes.

Fully Furnished 3D Floor Plans
Our team can add detailed furniture, décor, and appliances to your floor plan, helping clients see the space as it would look when occupied.

Custom Style Options
From modern minimalism to luxurious interiors, we can customize the style of your 3D floor plan redraw to align with your brand or project requirements.

High-Resolution Outputs
We deliver sharp, high-resolution 3D floor plans suitable for websites, brochures, and presentations. These professional visuals make your marketing materials stand out.

Quick Turnaround and Affordable Pricing
We value both speed and quality. Our experienced team ensures quick delivery without compromising on accuracy or detail. With affordable pricing, our services are accessible for businesses of all sizes.

Interactive 3D Models
Create interactive 3D floor plans that allow clients to explore the space from different angles, providing an immersive experience that enhances understanding and engagement.
Why Choose Voxelhaus Consultancy?
Expert Team
Expert Team: Skilled designers with years of experience in architectural visualization
Affordable Solutions
Affordable Solutions: Cost-effective solutions tailored to fit your budget
Fast Delivery
Fast Delivery: Quick turnaround without sacrificing quality
Secure Services
Confidential & Secure: Your data and designs remain 100% safe with us
Global Reach
Global Reach: Serving real estate, architecture, and design professionals worldwide
Custom Style Options
Custom Style Options: Tailored to match your brand and project requirements
High-Resolution Outputs
High-Resolution Outputs: Professional visuals for all marketing needs
Interactive Models
Interactive Models: Engaging 3D experiences that captivate clients
A 3D floor plan redraw is more than just a visual upgrade—it's a strategic tool to enhance property marketing, streamline communication, and build client confidence. At Voxelhaus consultancy, we transform your designs into clear, engaging, and impactful 3D visuals that help sell ideas and properties faster.